Консольные стеллажи
Металлические консольные стеллажи стали одним из оптимальных вариантов для
компактного складирования длинномерных конструкций, таких как металлопрокат, деревянные или стальные балки,
рулоны или пиломатериалы. Область применения консольных стеллажей не перестает расширяться: они все чаще
встречаются в тех помещениях, где хранятся негабаритные грузы, а также разнообразные изделия в мотках,
бухтах,
коробах, и т. д. Современные производители обеспечивают постоянную модернизацию консольных систем,
разрабатывая
особые полки, настилы, ограничители и разделители, которые легко монтируются на консоли. Дополнительные
элементы
фиксируются при помощи простых соединительных элементов и гарантируют устойчивое и прочное закрепление
грузов.
Цены на модели консольных стеллажей
Для просмотра цен на модели необходимо выбрать соответствующую вкладку под описанием.
Преимущества консольных стеллажей
Консольные стеллажи обладают рядом преимуществ перед прочими конструкциями для хранения товаров. Они обеспечивают компактное и безопасное складирование негабаритных или длинномерных грузов, а также любой другой продукции. Еще одно достоинство консольных стеллажей связано с тем, что они собираются из облегченных и компактных частей и могут достигать практически неограниченной длины. Число ярусов и опорных стоек также подбирается произвольно, в зависимости от количества и особенностей грузов. Это позволяет легко классифицировать продукцию по номенклатуре, весу, размерам и делает доступ к товарам, хранящимся на складе или в торговом помещении, максимально удобным.
Для повышения функциональности и прочности систем хранения промышленные консольные стеллажи нередко дополняются специальными металлическими подпятниками, штангами, пластинами, разделителями и другими элементами. За счет это можно значительно расширить ассортимент размещаемых товаров и способы их складирования. Особые отражатели, отбойники, ограничители, загрузочные ванны, дополняющие стеллажную систему, заметно упрощают работу с хранящейся продукцией.



Технические данные консольных стеллажей
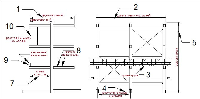
Металлические стеллажные системы собираются из отдельных элементов – стоек, консолей и раскосов – в линию любой длины.
Грузоподъемность конструкций составляет до 15000 кг на стойку и до 2000 кг на консоль.
Кронштейны консолей и стойки складских стеллажей перфорируются с шагом 150 мм, за счет чего высота расположения консолей легко меняется согласно требованиям груза.
Все элементы стеллажа покрываются полимерным порошковым слоем или высококачественной эмалью.




Конструкция консольных стеллажей
Наибольшей популярностью среди потребителей пользуется двусторонний стеллаж, который значительно экономит пространство помещения и упрощает работы по складированию грузов. Высота подобной конструкции может достигать 10 м и более. Длина отдельных консолей составляет до 2,5 м.
Еще одна особенность консольных стеллажей заключается в их высокой устойчивости к механическим воздействиям. Максимальная нагрузка, допустимая для отдельной консоли стеллажа, составляет свыше 100 кг и может быть увеличена до одной тонны. Сами консоли при этом легко размещаются на любой высоте, поскольку несущие колонны имеют продуманную систему фиксирующих отверстий.
Важным достоинством консольных стеллажей считается также устойчивость консолей к различным ударам, в частности к тем, которые наносятся механическими погрузочными машинами. Специальные жесткие связки горизонтальных консолей и несущих вертикальных колонн обеспечивают надежную защиту конструкции от деформации: при ударе погрузчика они лишь слегка отклоняются, не сообщая силу удара всей колонне.
Современные производители все чаще монтируют консольные стеллажи на перемещаемых основаниях, что повышает практическую емкость хранения товаров в 1,5–2 раза. Стойки фиксируются на мобильных базах таким образом, чтобы в итоге получалась единая система с одним проходом. Данный метод размещения не снижает несущую способность стеллажной конструкции. Сами направляющие либо монтируются в пол, либо заменяются плоскими облегченными рельсами, которые устанавливаются в фальшпол.



